飯田橋駅徒歩1分の好立地内装付きオフィス 受付、4名用会議室×1室、会議室什器付き
問い合わせ番号:53442
物件情報
- 賃料
476,280円
- 敷金・保証金
- 4カ月
- 礼金
- 無し
- 所在地
- 千代田区飯田橋3
- 交通
- JR・東西線・有楽町線等「飯田橋」1分
- 構造規模
-
鉄骨造
地上9階
- 契約面積
- 56.23m²(約17.01坪)
- 所在階
- 3階
入居可能時期
2026/09/26
備考
ターミナル駅飯田橋至近、水道橋や後楽園も徒歩圏、
複数路線が使えるアクセス最高の立地。神田川に面し室内からの眺望も良好。
周辺は、商業施設、オフィスビル、飲食店が多く立ち並ぶ一方で、神楽坂エリアなど歴史と趣のある街並みも楽しめるエリアです。徒歩圏内にある神楽坂は、石畳の路地や老舗の飲食店が点在する趣深いエリアです。
フレンチや和食の名店が多く、食文化を楽しむのに最適です。
伝統的な料亭や小さなギャラリーもあり、散策するだけで文化を感じられます。
駅前には「飯田橋サクラテラス」という商業施設があり、カフェやレストラン、雑貨店が入っています。
ゆったりとした空間で買い物や食事を楽しめます。
飯田橋駅のすぐそばには「外濠公園」が広がっており、春には桜が美しい散策コースになります。
公園内にはベンチも多く、都会の中でリラックスできる。
このエリアの人気のセットアップオフィスでデザイナーズ仕様のおしゃれな内装が魅力。
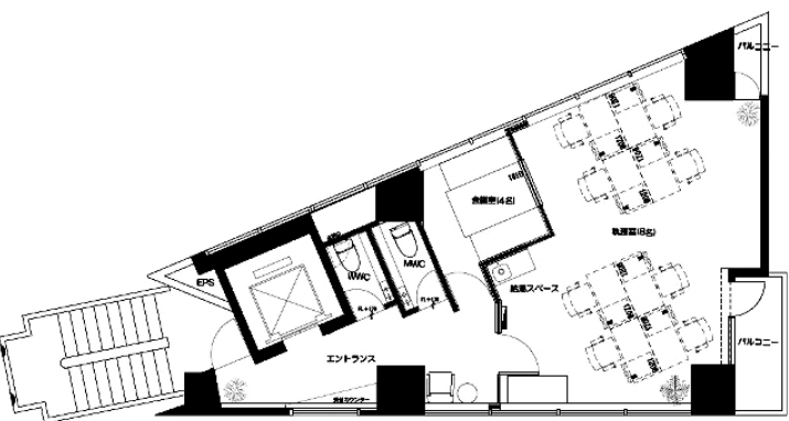
貸室内には受付・4名用会議室1部屋を設置済み。
10名前後の企業向け、飯田橋の内装付きオフィスです。
会員限定公開情報は
無料会員登録後に閲覧いただけます
間取り

同じエリアのおすすめ物件

半蔵門駅1分ほか複数路線が使える格安居抜きオフィス
297.02m²〔89.85坪〕
相談

半蔵門エリアの眺望抜群メゾネットオフィス
140.89m²〔42.62坪〕
相談

水道橋駅1分の築浅セットアップオフィス 敷金0相談
99.83m²〔30.20坪〕
845,598円

水道橋駅1分の築浅セットアップオフィス 敷金0相談
99.83m²〔30.20坪〕
785,200円

初期費用キャンペーン実施中!神田・秋葉原エリアのシェアオフィス【8名想定】
31.12m²〔9.41坪〕
523,000円

初期費用キャンペーン実施中!神田・秋葉原エリアのシェアオフィス【6名想定】
22.26m²〔6.73坪〕
350,000円
物件情報
- 賃料
476,280円
- 敷金・保証金
- 4カ月
- 礼金
- 無し
- 所在地
- 千代田区飯田橋3
- 交通
- JR・東西線・有楽町線等「飯田橋」1分
- 構造規模
-
鉄骨造
地上9階
- 契約面積
- 56.23m²(約17.01坪)
- 所在階
- 3階
入居可能時期
2026/09/26
受付時間:平日9:00~18:00








