1分で

完了

資料ダウンロード
仲介手数料無料

麹町エリアの皇居ビュー眺望抜群居抜きオフィス

問い合わせ番号:52803

半蔵門駅徒歩圏の居抜きオフィス

個室スペースが複数設置済み

眺望抜群です!

FM東京通り

皇居ビュー

駐車場

エントランス

外観

物件情報

賃料

2,917,200

敷金・保証金
6ヵ月
礼金
無し
所在地
千代田区麴町
交通
半蔵門線「半蔵門線」3分
有楽町線「麹町」8分
南北線「永田町」12分
銀座線・丸ノ内線「赤坂見附」12分
構造規模
鉄筋鉄骨コンクリート造
地下2階 地上9階
契約面積
321.47m²(約97.24坪)
所在階
6階

入居可能時期

即日入居可

備考

東京メトロ半蔵門線「半蔵門駅」徒歩分、東京メトロ有楽町線「麹町駅」徒歩8分、
東京メトロ各線「永田町駅」徒歩12分、東京メトロ銀座線・丸ノ内線「赤坂見附駅」徒歩12分、
1990年4月竣工、鉄骨鉄筋コンクリート造地上9階、地下2階建ての賃貸オフィス。
基準階面積111.44坪、エレベーター2基、個別空調、床荷重300kg/㎡、機械警備、トイレ男女別、駐車場あり。
光ファイバー対応24時間使用可、周辺の麹町・半蔵門エリアは、高級住宅や大使館が集まる格式の高いビジネスゾーンエリアです。
皇居、内堀通りが徒歩圏で緑が多く静かな環境、飲食店・カフェ・コンビニも点在し日常利便性も確保。
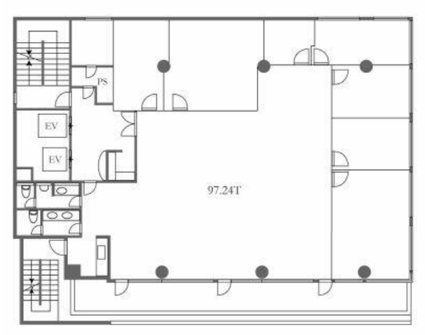
このエリアの居抜きオフィス、個室スペースが複数設置済み。執務室は20-40名前後でのご利用を想定。
ご興味のある方はお問合せください。麹町の内装付きオフィスです。

会員限定公開情報
無料会員登録後に閲覧いただけます

間取り

物件情報

賃料

2,917,200

敷金・保証金
6ヵ月
礼金
無し
所在地
千代田区麴町
交通
半蔵門線「半蔵門線」3分
有楽町線「麹町」8分
南北線「永田町」12分
銀座線・丸ノ内線「赤坂見附」12分
構造規模
鉄筋鉄骨コンクリート造
地下2階 地上9階
契約面積
321.47m²(約97.24坪)
所在階
6階

入居可能時期

即日入居可

03-6260-9380

受付時間:平日9:00~18:00

現在の検索結果

気になる物件のご質問、ご要望、内覧等は
お問い合わせフォーム または
お電話 でご連絡ください。

03-6260-9380

営業時間:平日9:00~18:00

×

条件で物件を探す

エリア

広さ

坪 ~

こだわり

キャンセル