秋葉原のフルセットアップオフィス、敷金0相談、原状回復免除
問い合わせ番号:52504
物件情報
- 賃料
765,958円
- 敷金・保証金
-
相談
※保証会社に加入することにより敷金0相談
審査の内容によっては敷金が積み増しになる可能性があります。
- 所在地
- 千代田区東神田
- 交通
- JR 「馬喰町」4分
新宿線 「馬喰横山」4分
新宿線「 岩本町」7分
JR ・日比谷線「 秋葉原」9分
- 構造規模
-
鉄骨造
地上9階
- 契約面積
- 9739m²(約2946.05坪)
- 所在階
- 8階
入居可能時期
2026年8月上旬
備考
JR 馬喰町駅まで徒歩4分、都営新宿線 馬喰横山駅まで徒歩4分、都営新宿線 岩本町駅まで徒歩7分
東京メトロ日比谷線 秋葉原駅まで徒歩9分、JR 秋葉原駅まで徒歩10分。
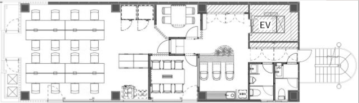
1992年6月竣工、鉄骨造9階建の賃貸オフィス、EV 1基(9人乗)、OAフロア、個別空調、トイレ専用男女別洋式、機械警備、EV不停止機能付。
原状回復義務なし(原状変更した場合や破損等を除く)、会議室2つ、ラウンジスペースを設置予定。
室内には16名用の椅子・デスク、更には2台のテレカンブースもご用意がございます!Wi-Fiも完備。
古くからの問屋・繊維関連の企業と、新しいビジネスも融合した活気ある街並みが特徴です。
周辺の靖国通り沿いにはコンビニエンスストア、郵便局、薬局 、飲食店、カフェが点在します。
このエリアのフルセットアップオフィス、ご興味のある方はお問合せください。
秋葉原の敷金0相談、原状回復免除のフルセットアップオフィスです。
会員限定公開情報は
無料会員登録後に閲覧いただけます
間取り

同じエリアのおすすめ物件

神田、大手町の新築ハーフセットアップオフィス 敷金0相談
117.26m²〔35.47坪〕
相談

麹町エリアの居抜きオフィス
234.11m²〔70.82坪〕
2,124,363円

水道橋駅徒歩4分のセットアップオフィス
168.06m²〔50.84坪〕
1,219,920円

原状回復工事不要!水道橋エリアのセットアップオフィス
88.48m²〔26.77坪〕
695,760円

複数路線が利用可能なハイグレード居抜きオフィス 敷金0相談
198.11m²〔59.93坪〕
相談

水道橋駅徒歩圏の大型バルコニー付きセットアップオフィス
99.83m²〔30.20坪〕
845,600円
物件情報
- 賃料
765,958円
- 敷金・保証金
-
相談
※保証会社に加入することにより敷金0相談
審査の内容によっては敷金が積み増しになる可能性があります。
- 所在地
- 千代田区東神田
- 交通
- JR 「馬喰町」4分
新宿線 「馬喰横山」4分
新宿線「 岩本町」7分
JR ・日比谷線「 秋葉原」9分
- 構造規模
-
鉄骨造
地上9階
- 契約面積
- 9739m²(約2946.05坪)
- 所在階
- 8階
入居可能時期
2026年8月上旬
受付時間:平日9:00~18:00





