大手町駅徒歩圏の居抜きオフィス
問い合わせ番号:51745
物件情報
- 賃料
1,330,980円
- 共益費
- 190,140円
- 敷金・保証金
- 6ヶ月
- 礼金
- 無し
- 償却等
- 無し
- 所在地
- 千代田区内神田
- 交通
- 丸ノ内線・千代田線・半蔵門線等「大手町」5分
JR・銀座線「神田」5分
新宿線「小川町」7分
JR「東京」10分
- 構造規模
-
鉄筋鉄骨コンクリート造
地上8階
- 契約面積
- 209.52m²(約63.38坪)
- 所在階
- 6階
入居可能時期
2026/08/01
備考
東京メトロ丸ノ内線 大手町駅まで徒歩5分、JR 神田駅まで徒歩5分、
都営新宿線 小川町駅まで徒歩7分、東京メトロ丸ノ内線 淡路町駅まで徒歩8分、
東京メトロ千代田線 新御茶ノ水駅まで徒歩9分、1997年4月竣工、鉄骨鉄筋コンクリート造地下1階付8階建の賃貸オフィス。
EV 2基、天井高:2500㎜、床仕様:OAフロア個別空調、トイレ専用男女別洋式、機械警備、EV不停止機能付、エントランスセキュリティ。
周辺は大手町・神田のオフィス街に位置し、周囲に多くのオフィスビルが並ぶエリアです。幹線通りから少し入った比較的落ち着いた環境。
徒歩圏にコンビニエンスストア、郵便局・ドラッグストアなどがあります。
このエリアの居抜きオフィス、カーテンウォールのスタイリッシュな外観で2面採光の明るい室内も魅力。
そして居抜き相談オフィスで什器もついている。ご興味のおありの方はお問合せください。詳細資料をお送りいたします。
30名程度の企業向け、神田大手町の内装付きオフィスです。
会員限定公開情報は
無料会員登録後に閲覧いただけます
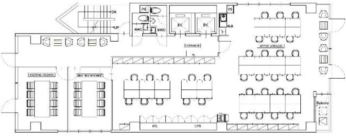
間取り

同じエリアのおすすめ物件

敷金無し!複数路線利用可能なフルセットアップオフィス
92.09m²〔27.86坪〕
724,091円

秋葉原の大型居抜きオフィス
556.23m²〔168.26坪〕
相談

竹橋の大型ビルの分割フルセットアップオフィス 敷金0相談
159.64m²〔48.29坪〕
1,999,000円

竹橋の大型ビルの分割フルセットアップオフィス 敷金0相談
221.55m²〔67.02坪〕
2,399,000円

竹橋の大型ビルの分割フルセットアップオフィス 敷金0相談
111.6m²〔33.76坪〕
1,399,000円

神保町至近の新築フルセットアップオフィス
相談
物件情報
- 賃料
1,330,980円
- 共益費
- 190,140円
- 敷金・保証金
- 6ヶ月
- 礼金
- 無し
- 償却等
- 無し
- 所在地
- 千代田区内神田
- 交通
- 丸ノ内線・千代田線・半蔵門線等「大手町」5分
JR・銀座線「神田」5分
新宿線「小川町」7分
JR「東京」10分
- 構造規模
-
鉄筋鉄骨コンクリート造
地上8階
- 契約面積
- 209.52m²(約63.38坪)
- 所在階
- 6階
入居可能時期
2026/08/01
受付時間:平日9:00~18:00










