1分で

完了

資料ダウンロード
仲介手数料無料

神田エリアの内装付きオフィス 敷金0相談

問い合わせ番号:51475

神田エリアのフルセットアップオフィス

神田エリアの内装付きオフィス

エントランス

外観

物件情報

賃料
相談

賃料は会員登録後にご確認いただけます。
会員登録はこちらから

敷金・保証金
相談

※保証会社に加入することにより敷金0相談
審査の内容によっては敷金が積み増しになる可能性があります。

礼金
なし
所在地
千代田区神田紺屋町
交通
JR・銀座線「神田」4分
新宿線「岩本町」5分
日比谷線「小伝馬町」6分
総武本線「新日本橋」5分
構造規模
鉄筋鉄骨コンクリート造
地下1階 地上10階
契約面積
385.88m²(約116.73坪)
所在階
6階

入居可能時期

2026年9月上旬

備考

JR 神田駅まで徒歩5分、東京メトロ銀座線 神田駅まで徒歩5分、都営新宿線 岩本町駅まで徒歩5分、
JR 新日本橋駅まで徒歩5分、東京メトロ銀座線 三越前駅まで徒歩5分。
1993年4月竣工、鉄骨鉄筋コンクリート造地下1階付10階建の昭和通りに面する賃貸オフィス。
周辺にはグルメの聖地神田ならではの昔からある名店やラーメン店、居酒屋などランチやディナーの選択肢が多い楽しいエリア。
デザイン性の高い室内は、入った瞬間に圧倒される。もちろんデザインだけではなく、質感・機能性も兼ね揃えている
大人気のセットアップオフィス。会議室やミーティングスペース、休憩スペースなどオフィスの基本性能が備わっており、
うまく使いこなせればコストを大幅に抑え移転することが可能。設置されているオフィス家具は、デザイナーが選定したブランド品が採用されております。
デザイン性が高く、高級感がある貸室内はオフィスに入った瞬間圧倒されます。(オフィス家具は、受付、会議室、リフレッシュルームに設置しております。)
2022年11月には、エントランス・ファサードのリニューアル済.神田エリアのセットアップオフィスです。

ハーフセットアップオフィスや什器が不足しているオフィスでも、家具・什器をサブスク・リースで導入することで、初期費用を抑えながら什器付きオフィスとして利用可能です。増員や働き方の変化にも柔軟に対応でき、購入・廃棄コストの削減にもつながります。

今すぐ問い合わせ

会員限定公開情報
無料会員登録後に閲覧いただけます

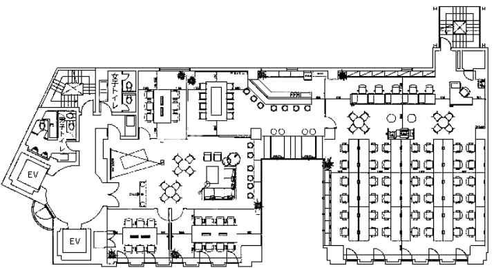
間取り

物件情報

賃料
相談

賃料は会員登録後にご確認いただけます。
会員登録はこちらから

敷金・保証金
相談

※保証会社に加入することにより敷金0相談
審査の内容によっては敷金が積み増しになる可能性があります。

礼金
なし
所在地
千代田区神田紺屋町
交通
JR・銀座線「神田」4分
新宿線「岩本町」5分
日比谷線「小伝馬町」6分
総武本線「新日本橋」5分
構造規模
鉄筋鉄骨コンクリート造
地下1階 地上10階
契約面積
385.88m²(約116.73坪)
所在階
6階

入居可能時期

2026年9月上旬

03-6260-9380

受付時間:平日9:00~18:00

現在の検索結果

気になる物件のご質問、ご要望、内覧等は
お問い合わせフォーム または
お電話 でご連絡ください。

03-6260-9380

営業時間:平日9:00~18:00

×

条件で物件を探す

エリア

広さ

坪 ~

こだわり

キャンセル