飯田橋駅徒歩1分の好立地セットアップオフィス
問い合わせ番号:50568
物件情報
- 賃料
442,960円
- 敷金・保証金
- 4カ月
- 礼金
- 無し
- 所在地
- 千代田区飯田橋3
- 交通
- JR・東西線・有楽町線等「飯田橋」1分
- 構造規模
-
鉄骨造
地上9階
- 契約面積
- 52.31m²(約15.82坪)
- 所在階
- 8階
入居可能時期
2026/07/29
備考
東京メトロ東西線、有楽町線、南北線、都営大江戸線飯田橋駅徒歩1分、JR中央・総武線 飯田橋駅 徒歩約3分
JR、都営三田線水道橋駅徒歩8分、1999年3月竣工、2022年に大規模リニューアル実施。
鉄骨造地上9階建ての賃貸オフィス。神田川に面し室内からの眺望も良好。
個別空調・機械警備・男女別トイレ。周辺は、商業施設、オフィスビル、飲食店が多く立ち並ぶ一方で、
神楽坂エリアなど歴史と趣のある街並みも楽しめるエリアです。徒歩圏内にある神楽坂は、石畳の路地や老舗の飲食店が点在する趣深いエリアです。
フレンチや和食の名店が多く、食文化を楽しむのに最適です。
伝統的な料亭や小さなギャラリーもあり、散策するだけで文化を感じられます。
駅前には「飯田橋サクラテラス」という商業施設があり、カフェやレストラン、雑貨店が入っています。
ゆったりとした空間で買い物や食事を楽しめます。
このエリアの人気のセットアップオフィスでデザイナーズ仕様のおしゃれな内装が魅力。
8名前後の企業向け、飯田橋の内装付きオフィスです。
会員限定公開情報は
無料会員登録後に閲覧いただけます
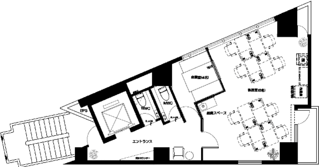
間取り

同じエリアのおすすめ物件

麹町エリアの居抜きオフィス
234.11m²〔70.82坪〕
2,124,363円

水道橋駅徒歩4分のセットアップオフィス
168.06m²〔50.84坪〕
1,219,920円

原状回復工事不要!水道橋エリアのセットアップオフィス
88.48m²〔26.77坪〕
695,760円

複数路線が利用可能なハイグレード居抜きオフィス 敷金0相談
198.11m²〔59.93坪〕
相談

水道橋駅徒歩圏の大型バルコニー付きセットアップオフィス
99.83m²〔30.20坪〕
845,600円

水道橋駅徒歩圏のセットアップオフィス
99.83m²〔30.20坪〕
785,200円
物件情報
- 賃料
442,960円
- 敷金・保証金
- 4カ月
- 礼金
- 無し
- 所在地
- 千代田区飯田橋3
- 交通
- JR・東西線・有楽町線等「飯田橋」1分
- 構造規模
-
鉄骨造
地上9階
- 契約面積
- 52.31m²(約15.82坪)
- 所在階
- 8階
入居可能時期
2026/07/29
受付時間:平日9:00~18:00





