仲介手数料無料
小川町のハイグレード居抜きオフィス
問い合わせ番号:48732
物件情報
- 賃料
- 相談
- 敷金・保証金
- 12か月
- 所在地
- 千代田区神田小川町
- 交通
- 丸の内線「淡路町」
千代田線「新御茶ノ水」
新宿線「小川町」
JR「御茶ノ水」
- 構造規模
-
鉄筋鉄骨コンクリート造
地下1階 地上10階
- 契約面積
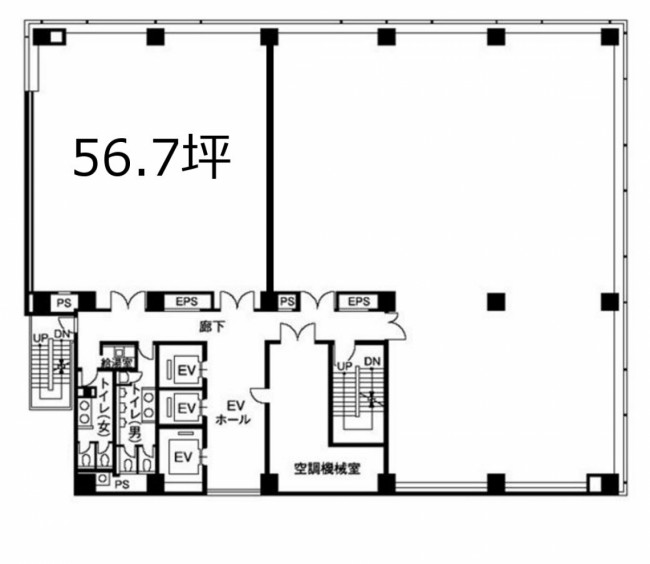
- 187.48m²(約56.71坪)
- 所在階
- 階数非公開
入居可能時期
相談
備考
営新宿線「小川町駅」A6出口徒歩約1分、東京メトロ丸ノ内線「淡路町駅」A4出口徒歩約2分、東京メトロ千代田線「新御茶ノ水駅」B3出口徒歩約3分、
JR中央線・総武線「御茶ノ水駅」聖橋口:徒歩約8分、JR山手線・京浜東北線「神田駅」徒歩約8分。複数路線が使える好立地。
周辺には飲食店やカフェ、銀行、ドラッグストアなど多くの商業施設が集まっており、便利な立地です。
1986年11月竣工の地上10階・地下1階建ての靖国通りに面する賃貸オフィスビル。
大型オフィスの分割区画で居抜き相談オフィス、ご興味のおありの方は会員登録の上、詳細をご確認ください。
30名前後の企業向け、神田の内装付きオフィスです。
会員限定公開情報は
無料会員登録後に閲覧いただけます
間取り

同じエリアのおすすめ物件

麹町エリアの築浅セットアップオフィス
千代田区麴町
82.97m²〔25.10坪〕
82.97m²〔25.10坪〕
702,800円

複数路線利用可能なセットアップオフィス
千代田区神田錦町
99.17m²〔30.00坪〕
99.17m²〔30.00坪〕
645,000円

永田町駅徒歩圏の居抜きオフィス
千代田区平河町
94.56m²〔28.60坪〕
94.56m²〔28.60坪〕
569,000円

神田駅のフルセットアップオフィス 敷金0相談
千代田区神田東松下町
177.97m²〔53.84坪〕
177.97m²〔53.84坪〕
相談

原状回復工事不要。敷金無しの什器付きセットアップオフィス。デザイン性抜群。
千代田区神田岩本町
82.63m²〔25.00坪〕
82.63m²〔25.00坪〕
824,670円

秋葉原のセットアップオフィス(什器付き)
千代田区岩本町
105.07m²〔31.78坪〕
105.07m²〔31.78坪〕
746,830円
物件情報
- 賃料
- 相談
- 敷金・保証金
- 12か月
- 所在地
- 千代田区神田小川町
- 交通
- 丸の内線「淡路町」
千代田線「新御茶ノ水」
新宿線「小川町」
JR「御茶ノ水」
- 構造規模
-
鉄筋鉄骨コンクリート造
地下1階 地上10階
- 契約面積
- 187.48m²(約56.71坪)
- 所在階
- 階数非公開
入居可能時期
相談
受付時間:平日9:00~18:00








