岩本町駅至近の敷金0相談フルセットアップオフィス(原状回復なし)
問い合わせ番号:48363
物件情報
- 賃料
648,270円
- 敷金・保証金
-
相談
※保証会社に加入することにより敷金0相談
審査の内容によっては敷金が積み増しになる可能性があります。
- 所在地
- 千代田区岩本町
- 交通
- 新宿線 「岩本町」4分
日比谷線 「小伝馬町」5分
銀座線・JR 「神田」7分
JR 「新日本橋」7分
JR 「馬喰町」9分
- 構造規模
-
鉄骨造
地下1階 地上8階
- 契約面積
- 79.37m²(約24.01坪)
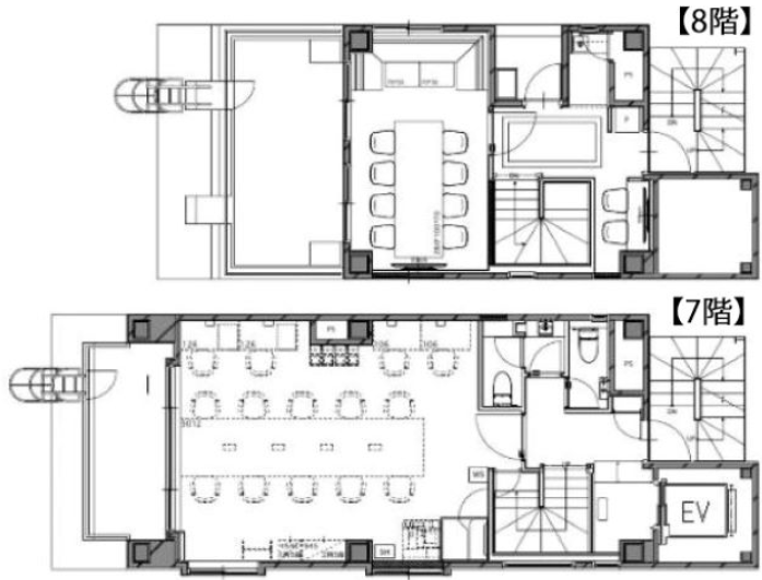
- 所在階
- 7+8階
入居可能時期
即日入居可
備考
都営新宿線 岩本町駅まで徒歩4分、東京メトロ日比谷線 小伝馬町駅まで徒歩5分
東京メトロ銀座線・JR 神田駅まで徒歩7分、JR 新日本橋駅まで徒歩7分、JR 馬喰町駅まで徒歩9分。
1991年5月竣工、鉄骨造、地下1階付8階建の賃貸オフィス。2026年1月に貸室内リニューアル。
周辺にはミニストップ岩本町2丁目店、セブンイレブン千代田岩本町2・3丁目店
銀行支店、千代田岩本町郵便局、日本橋本町郵便局があり必要なインフラが整ってます。
飲食店・ランチ・会食環境も充実。ビジネスランチ・夜の食事にも困りにくい立地。
このエリアのフルセットアップオフィス、原状回復義務なし(原状変更した場合や破損等を除く)
クリーニング費用をご負担いただきます。(入居時)岩本町の内装付きオフィスです。
会員限定公開情報は
無料会員登録後に閲覧いただけます
間取り

同じエリアのおすすめ物件

神保町の共用部分充実の新築セットアップオフィス
54.78m²〔16.57坪〕
497,100円

複数路線が使える市ヶ谷駅まで徒歩1分のフルセットアップオフィス 敷金0相談、原状回復免除
131.97m²〔39.92坪〕
1,077,840円

水道橋駅徒歩圏のセットアップオフィス
62.56m²〔18.92坪〕
435,160円

神田エリアの居抜きオフィス
273.36m²〔82.69坪〕
1,736,490円

敷金無し!神田駅徒歩4分の什器付きセットアップオフィス
145.98m²〔44.16坪〕
1,324,800円

敷金無し!神田駅徒歩4分の什器付きセットアップオフィス
145.98m²〔44.16坪〕
1,324,800円
物件情報
- 賃料
648,270円
- 敷金・保証金
-
相談
※保証会社に加入することにより敷金0相談
審査の内容によっては敷金が積み増しになる可能性があります。
- 所在地
- 千代田区岩本町
- 交通
- 新宿線 「岩本町」4分
日比谷線 「小伝馬町」5分
銀座線・JR 「神田」7分
JR 「新日本橋」7分
JR 「馬喰町」9分
- 構造規模
-
鉄骨造
地下1階 地上8階
- 契約面積
- 79.37m²(約24.01坪)
- 所在階
- 7+8階
入居可能時期
即日入居可
受付時間:平日9:00~18:00







