市ヶ谷のフルセットアップオフィス
問い合わせ番号:48327
物件情報
- 賃料
358,720円
- 敷金・保証金
- 6か月
- 所在地
- 千代田区九段南
- 交通
- 新宿線 「市ヶ谷」5分
JR 「市ヶ谷」8分
半蔵門線 「半蔵門」10分
東西線 「九段下」11分
半蔵門線 「九段下」11分
- 構造規模
-
鉄筋コンクリート造
地下1階 地上6階
- 契約面積
- 62.41m²(約18.88坪)
- 所在階
- 5階
入居可能時期
2026/04/01
備考
都営新宿線 市ヶ谷駅まで徒歩5分、JR 市ヶ谷駅まで徒歩8分、東京メトロ半蔵門線 半蔵門駅まで徒歩10分
東京メトロ東西線 九段下駅まで徒歩11分、東京メトロ半蔵門線 九段下駅まで徒歩11分。
1990年12月竣工、鉄筋コンクリート造地下1階付6階建の賃貸オフィス。
内装はモノトーンを基調としたスタイリッシュで清潔感のある仕上がりです。
エントランスは常時オートロックとなっておりセキュリティカードにて出入りすることが可能です。
来客の際には、インターホンを押していただくことにより貸室から開錠することが出来ます。
貸室内には機械警備を完備しており、安心できるセキュリティ設備が整っているのも魅力の一つです。
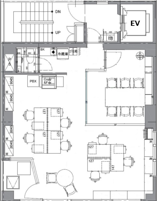
このエリアのフルセットアップオフィス、受付、6名会議室、7名座席を確保。
市ヶ谷の内装付きオフィスです。
会員限定公開情報は
無料会員登録後に閲覧いただけます
間取り

同じエリアのおすすめ物件

神保町の共用部分充実の新築セットアップオフィス
千代田区神田錦町
54.78m²〔16.57坪〕
54.78m²〔16.57坪〕
497,100円

複数路線が使える市ヶ谷駅まで徒歩1分のフルセットアップオフィス 敷金0相談、原状回復免除
千代田区九段南
131.97m²〔39.92坪〕
131.97m²〔39.92坪〕
1,077,840円

水道橋駅徒歩圏のセットアップオフィス
千代田区神田猿楽町
62.56m²〔18.92坪〕
62.56m²〔18.92坪〕
435,160円

神田エリアの居抜きオフィス
千代田区内神田2
273.36m²〔82.69坪〕
273.36m²〔82.69坪〕
1,736,490円

敷金無し!神田駅徒歩4分の什器付きセットアップオフィス
千代田区神田須田町
145.98m²〔44.16坪〕
145.98m²〔44.16坪〕
1,324,800円

敷金無し!神田駅徒歩4分の什器付きセットアップオフィス
千代田区神田須田町
145.98m²〔44.16坪〕
145.98m²〔44.16坪〕
1,324,800円
物件情報
- 賃料
358,720円
- 敷金・保証金
- 6か月
- 所在地
- 千代田区九段南
- 交通
- 新宿線 「市ヶ谷」5分
JR 「市ヶ谷」8分
半蔵門線 「半蔵門」10分
東西線 「九段下」11分
半蔵門線 「九段下」11分
- 構造規模
-
鉄筋コンクリート造
地下1階 地上6階
- 契約面積
- 62.41m²(約18.88坪)
- 所在階
- 5階
入居可能時期
2026/04/01
受付時間:平日9:00~18:00

