九段エリアのセットアップオフィス

問い合わせ番号:47419

物件情報

賃料

478,800

敷金・保証金
4カ月
礼金
無し
償却等
更新料:1カ月
所在地
千代田区九段南
交通
JR・新宿線・南北線等「市ヶ谷」6分
半蔵門線「半蔵門」10分
東西線「九段下」10分
構造規模
鉄筋コンクリート造
地上5階
契約面積
83.30m²(約25.20坪)
所在階
3階

入居可能時期

即日入居可

備考

JR中央・総武線、東京メトロ有楽町線、東京メトロ南北線、都営新宿線市ヶ谷駅徒歩6分、
東京メトロ東西線、半蔵門線、都営新宿線九段下駅徒歩10分、東京メトロ半蔵門線半蔵門駅徒歩10分。
1987年2月竣工、エントランス・共用部を2016年に改装済み。鉄筋コンクリート造、地上5階建ての賃貸オフィス。
個別空調、OAフロア、光ファイバー、機械警備、24時間使用可。
周辺にはコンビニ、飲食店、郵便局、銀行支店などが揃っており、ビジネス拠点として利便性が高いエリアです。
靖国神社、北の丸公園や千鳥ヶ淵も徒歩圏で自然と触れ合えある心地いい環境です。
このエリアのセットアップオフィス、4-6名用の個室会議室が設置済み。執務室は10名前後でのご利用を想定。
九段の内装付きオフィスです。

会員限定公開情報
無料会員登録後に閲覧いただけます

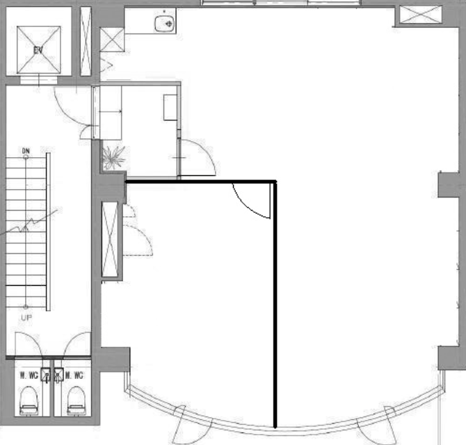
間取り

物件情報

賃料

478,800

敷金・保証金
4カ月
礼金
無し
償却等
更新料:1カ月
所在地
千代田区九段南
交通
JR・新宿線・南北線等「市ヶ谷」6分
半蔵門線「半蔵門」10分
東西線「九段下」10分
構造規模
鉄筋コンクリート造
地上5階
契約面積
83.30m²(約25.20坪)
所在階
3階

入居可能時期

即日入居可

03-6260-9380

受付時間:平日9:00~18:00

現在の検索結果

気になる物件のご質問、ご要望、内覧等は
お問い合わせフォーム または
お電話 でご連絡ください。

03-6260-9380

営業時間:平日9:00~18:00

×

条件で物件を探す

エリア

広さ

坪 ~

こだわり

キャンセル