仲介手数料無料
秋葉原の内装什器付きフルセットアップオフィス(敷金0相談)原状回復なし
問い合わせ番号:47139
物件情報
- 賃料
1,000,000円
- 敷金・保証金
-
相談
※保証会社に加入することにより敷金0相談
審査の内容によっては敷金が積み増しになる可能性があります。
- 所在地
- 千代田区神田岩本町1
- 交通
- 新宿線 「岩本町」2分
日比谷線 ・JR 「秋葉原」5分
銀座線 「神田」10分
- 構造規模
-
鉄骨造
地上9階
- 契約面積
- 94.6m²(約28.62坪)
- 所在階
- 5階
入居可能時期
2026/02/01
備考
都営新宿線「岩本町駅」A3出口より徒歩2分 、JR山手線・京浜東北線「秋葉原駅」徒歩5分その他利用可能な駅:東京メトロ銀座線「神田駅」徒歩10分、
鉄骨造・地上9階建(1989年9月竣工、新耐震基準対応) の賃貸オフィス。
周辺にはコンビニ、ドラッグストア、飲食店も多く、秋葉原駅にも近くヨドバシアキバなどの施設もあり便利。
昔ながらの繊維・古着関連企業が点在し、下町らしい歴史ある街並みも残っています。
このエリアのフルセットアップオフィス、敷金0と原状回復免除も魅力、コストを抑え移転されたい方にお勧め、
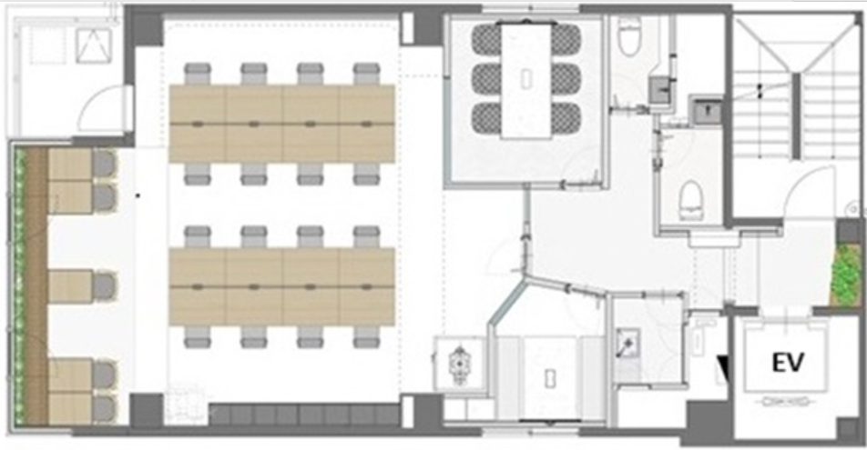
15名前後の企業向け秋葉原の内装付きオフィスです。
会員限定公開情報は
無料会員登録後に閲覧いただけます
間取り

同じエリアのおすすめ物件

神保町エリアの居抜きオフィス
千代田区神田神保町
228.96m²〔69.26坪〕
228.96m²〔69.26坪〕
1,870,020円

麹町のデザイン性抜群のセットアップオフィス
千代田区平河町
111.24m²〔33.65坪〕
111.24m²〔33.65坪〕
908,550円

市ヶ谷駅付近のフルセットアップオフィス
千代田区九段南
82.94m²〔25.09坪〕
82.94m²〔25.09坪〕
677,363円

小川町のハイグレード居抜きオフィス
千代田区神田小川町
187.48m²〔56.71坪〕
187.48m²〔56.71坪〕
相談

麹町エリアの居抜きデザイナーズオフィス
千代田区麴町
141.69m²〔42.86坪〕
141.69m²〔42.86坪〕
相談

赤坂エリアのフルセットアップオフィス(会員限定)
千代田区
132m²〔39.93坪〕
132m²〔39.93坪〕
相談
物件情報
- 賃料
1,000,000円
- 敷金・保証金
-
相談
※保証会社に加入することにより敷金0相談
審査の内容によっては敷金が積み増しになる可能性があります。
- 所在地
- 千代田区神田岩本町1
- 交通
- 新宿線 「岩本町」2分
日比谷線 ・JR 「秋葉原」5分
銀座線 「神田」10分
- 構造規模
-
鉄骨造
地上9階
- 契約面積
- 94.6m²(約28.62坪)
- 所在階
- 5階
入居可能時期
2026/02/01
受付時間:平日9:00~18:00




