仲介手数料無料
大手町エリアの高層階ハーフアップオフィス
問い合わせ番号:46200
物件情報
- 賃料
- 相談
- 敷金・保証金
- 12か月
- 所在地
- 千代田区大手町
- 交通
- 東西線・三田線・半蔵門線等「大手町」直結
JR・丸の内線「東京」8分
- 構造規模
-
鉄骨造
地下4階 地上31階
- 契約面積
- 217.45m²(約65.78坪)
- 所在階
- 27階
入居可能時期
相談
備考
地下鉄:東京メトロ丸ノ内線、半蔵門線、千代田線、東西線、都営三田線「大手町駅」E1・A4出口直結ターミナル系東京駅7分の好立地。
2000年9月に竣工し、制震構造、地上31階・地下4階建ての超高層オフィスビル。
地下階には商業ゾーンがあり、飲食店やコンビニ、クリニックなどが入居。
日本を代表するビジネス街である大手町エリアに位置しています。
周辺には多様な飲食店やカフェ、コンビニエンスストア、銀行、郵便局などが充実しており、ビジネスパーソンにとって利便性の高い環境です。
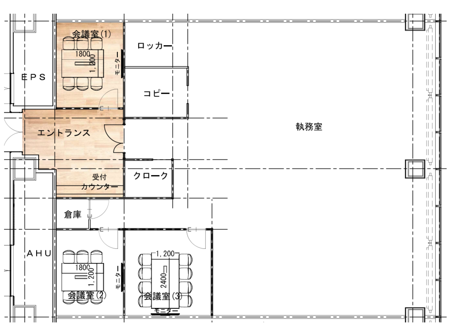
このエリアのフルセットアップオフィス、6名会議室×2、8名会議室×1、を用意、
ご興味のおありの方は会員登録の上、詳細をご確認ください。大手町の内装付きオフィスです。
会員限定公開情報は
無料会員登録後に閲覧いただけます
間取り

間取り

同じエリアのおすすめ物件

神保町の共用部分充実の新築セットアップオフィス
千代田区神田錦町
54.78m²〔16.57坪〕
54.78m²〔16.57坪〕
497,100円

複数路線が使える市ヶ谷駅まで徒歩1分のフルセットアップオフィス 敷金0相談、原状回復免除
千代田区九段南
131.97m²〔39.92坪〕
131.97m²〔39.92坪〕
1,077,840円

水道橋駅徒歩圏のセットアップオフィス
千代田区神田猿楽町
62.56m²〔18.92坪〕
62.56m²〔18.92坪〕
435,160円

神田エリアの居抜きオフィス
千代田区内神田2
273.36m²〔82.69坪〕
273.36m²〔82.69坪〕
1,736,490円

敷金無し!神田駅徒歩4分の什器付きセットアップオフィス
千代田区神田須田町
145.98m²〔44.16坪〕
145.98m²〔44.16坪〕
1,324,800円

敷金無し!神田駅徒歩4分の什器付きセットアップオフィス
千代田区神田須田町
145.98m²〔44.16坪〕
145.98m²〔44.16坪〕
1,324,800円
物件情報
- 賃料
- 相談
- 敷金・保証金
- 12か月
- 所在地
- 千代田区大手町
- 交通
- 東西線・三田線・半蔵門線等「大手町」直結
JR・丸の内線「東京」8分
- 構造規模
-
鉄骨造
地下4階 地上31階
- 契約面積
- 217.45m²(約65.78坪)
- 所在階
- 27階
入居可能時期
相談
受付時間:平日9:00~18:00
