市ヶ谷エリアのメゾネットセットアップオフィス
問い合わせ番号:24245
物件情報
- 賃料
617,540円
- 敷金・保証金
- 4カ月
- 償却等
- 償却:無し
更新料:1カ月
- 所在地
- 千代田区九段南
- 交通
- JR・新宿線・南北線等「市ヶ谷」5分
半蔵門線「半蔵門」9分
東西線「九段下」11分
- 構造規模
-
鉄筋コンクリート造
地上6階
- 契約面積
- 9279m²(約2806.90坪)
- 所在階
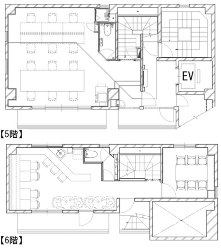
- 5階~6階
入居可能時期
即日入居可
備考
JR総武線、都営新宿線東京メトロ南北線、有楽町線4線が使用できる市ヶ谷駅5分の好立地。
靖国通りから少し入った路地にあるセットアップオフィス。
受付、会議室を備えたメゾネットタイプのセットアップオフィス。機械警備も導入済み
。5階は執務スペースとしてのご利用の場合、12名程のレイアウトが可能。
リフレッシュに最適なシャワールームも備えています。6階の会議室は6名用の什器を備え、モニターの設置スペースもご用意しています。
ラウンジスペースにはバーカウンターも設置されたおしゃれな空間となっております。
ご興味のおありの方はお問合せください。市ヶ谷の内装付きオフィスです。
ハーフセットアップオフィスや什器が不足しているオフィスでも、家具・什器をサブスク・リースで導入することで、初期費用を抑えながら什器付きオフィスとして利用可能です。増員や働き方の変化にも柔軟に対応でき、購入・廃棄コストの削減にもつながります。
会員限定公開情報は
無料会員登録後に閲覧いただけます
間取り

同じエリアのおすすめ物件

千代田区エリアで希少な1棟居抜きオフィス(会員限定)
千代田区
3966.94m²〔1200坪〕
3966.94m²〔1200坪〕
相談

水道橋エリアのセットアップオフィス
千代田区神田三崎町3
168.7m²〔51.03坪〕
168.7m²〔51.03坪〕
1,377,810円

水道橋エリアのセットアップオフィス
千代田区神田三崎町3
175.6m²〔53.12坪〕
175.6m²〔53.12坪〕
1,433,970円

秋葉原のハイグレード居抜きオフィス 敷金0相談 (会員限定)
千代田区
450m²〔136.13坪〕
450m²〔136.13坪〕
相談

複数路線が使える市ヶ谷駅至近のフルセットアップオフィス 原状回復免除 敷金0相談 社員のモチベーションアップ
千代田区九段南
89.13m²〔26.96坪〕
89.13m²〔26.96坪〕
900,000円

永田町至近、複数路線が使える便利な居抜きオフィス 敷金0相談 (会員限定)
千代田区
210m²〔63.53坪〕
210m²〔63.53坪〕
相談
物件情報
- 賃料
617,540円
- 敷金・保証金
- 4カ月
- 償却等
- 償却:無し
更新料:1カ月
- 所在地
- 千代田区九段南
- 交通
- JR・新宿線・南北線等「市ヶ谷」5分
半蔵門線「半蔵門」9分
東西線「九段下」11分
- 構造規模
-
鉄筋コンクリート造
地上6階
- 契約面積
- 9279m²(約2806.90坪)
- 所在階
- 5階~6階
入居可能時期
即日入居可
受付時間:平日9:00~18:00










